Aktuálně můžete v lokalitě Jihlava vybírat z nabídky 25 domů.
Přehled nemovitostí: pronájem domy > rodinné domy Zpět na přehled nabídek

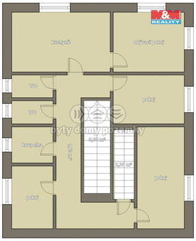
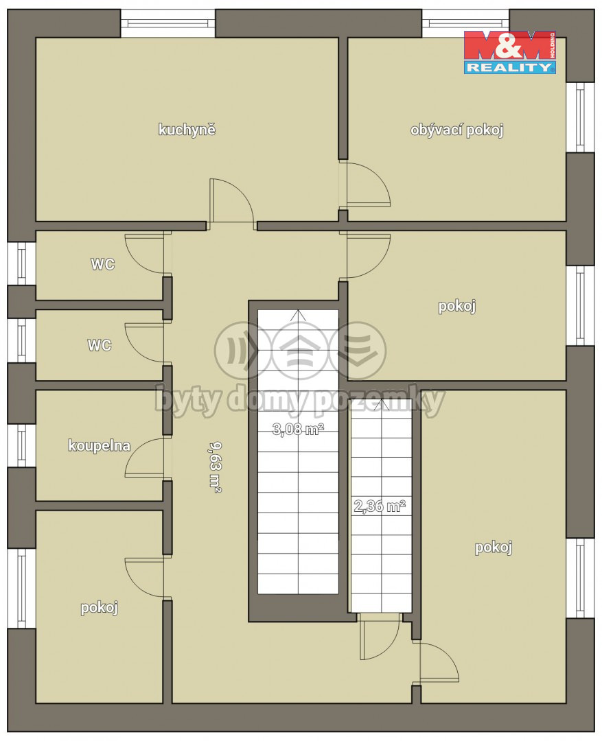
Pronájem rodinného domu, 120 m2, Žirov

140 m2

120 m2

osobní

G - Mimořádně nehospodárná

898214

Cena: na dotaz v RK
Poznámka k ceně: informace o ceně v RK 1

Poslat dotaz k nabídce
Zásady používání osobních údajů

Prodejce

Makléř: Zelenková Gabriela

Telefon: 800 100 ...

E-mail: info@mm ...

Zobrazit celý kontakt

Nemovitost nabízí

M&M reality holding a.s.

Krakovská 1675/2, 110 00 Praha 1

www.mmreality.cz

Zobrazit kontakt na RK

Zobrazit všechny nabídky RK

Nabízíme k pronájmu pro firemní pracovníky patro rodinného domu v obci Žirov, 10 km od města Pelhřimov směr Jihlava, 12 km od města Humpolec. Jedná se o klidnou lokalitu, příjemné prostředí, patro je po rekonstrukci. Jsou zde dvě toalety. Pronájem je včetně vybavení a k dispozici je zahrada s altánem k posezení. Počet osob 8. Cena je včetně energií. Bližší informace v RK.



Nahoru