Makléř: Bc. Daniel Humplík
Telefon: 777 220 ...
E-mail: daniel. ...
Zobrazit celý kontaktTelefon: 777 220 795
E-mail: daniel.humplik@gmail.com
Nemovitost nabízí
RealitasFIN, s.r.o.
Masarykova 750/316, Ústí nad Labem
Zobrazit kontakt na RK777 220 795
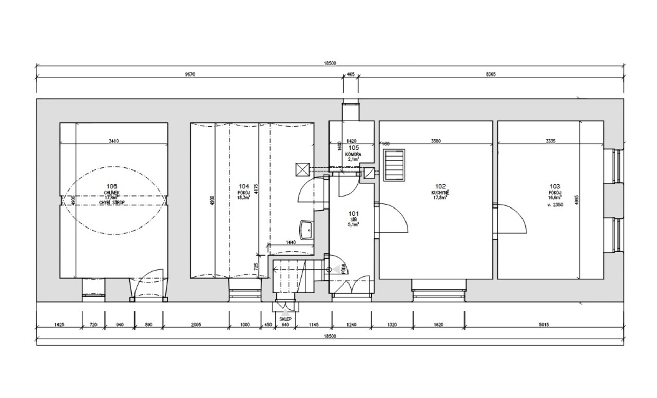
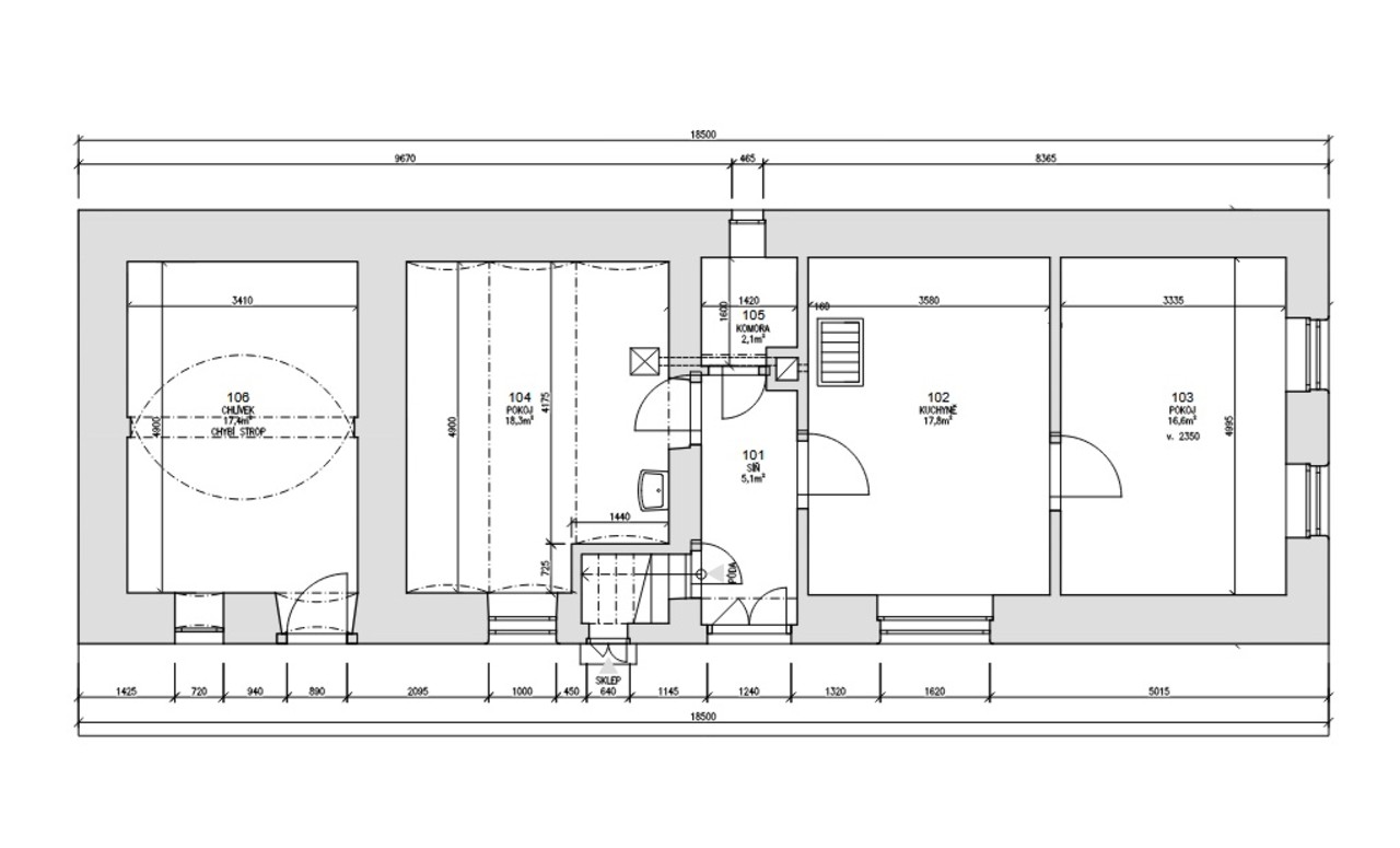
Na hranici Vysočiny a Jihočeského kraje, jen pár minut autem od Jindřichova Hradce nabízíme na prodej domek se zahradou. Je to rodinný dům, který čeká na nového majitele se smyslem pro rekonstrukci a vlastní představy o bydlení. Nemovitost nebyla delší dobu obývána a je určena k celkové modernizaci - od vyklizení interiéru, úprav vnitřních dispozic, zajištění nových přípojek na vodu a kanalizaci, až po vybudování oplocení. Výhodou je zachovalá a plně funkční střecha, která umožní soustředit se na ostatní části domu. Dům stojí na okraji obce v klidném prostředí, kde za zahradou začínají pole a nedaleké lesy. Tato poloha nabízí ideální kombinaci soukromí, klidu a blízkosti přírody - vhodné jak pro trvalé bydlení, tak i jako chalupa k rekreaci. Na pozemku se kromě rodinného domu nachází také bývalá kovárna a menší stodola, které lze využít podle vašich potřeb. Pokud hledáte místo, do kterého vtisknete svůj osobní styl a vytvoříte si domov podle vlastních představ, přijďte se přesvědčit na osobní prohlídku.
Prodej výjimečného rodinného domu 13 + 2k + 4k, 2 terasy/, hospodářská budova, užitná plocha 663 m2 s celkovým pozemkem 4988 m2 v obci Mirotín - Mnich.
Exkluzivně vám nabízíme ke koupi výjimečný rodinný dům který je romantikou a básní pro duši. Dům i hospodářská budova ve vynikajícím stavu se nachází…
Prodej rodinného domu ve Chválkově
Hledáte prostorný, dvougenerační nízkonákladový cihlový dům v čistém a klidném prostředí 120 km od Prahy? Částečně zrekonstruovaný dům v obci…