Aktuálně můžete v lokalitě Jihlava vybírat z nabídky 29 domů.
Přehled nemovitostí: prodej domy > rodinné domy Zpět na přehled nabídek

Prodej rodinného domu se zahradou v Čáslavicích, okres Třebíč, Čáslavice

2 595 m2

neuvedeno

osobní

G - Mimořádně nehospodárná

968003

05.05.2026

Cena: 3950000 CZK / objekt

Poslat dotaz k nabídce
Zásady používání osobních údajů

Prodejce

Makléř: Jiří Prokeš

Telefon: 724 936 ...

E-mail: prokes@ ...

Zobrazit celý kontakt

Nemovitost nabízí

Realitní kancelář MICHÁLEK & PARTNERS

Komenského 1321/1, Jihlava

www.mdreality.cz

Zobrazit kontakt na RK

Zobrazit všechny nabídky RK

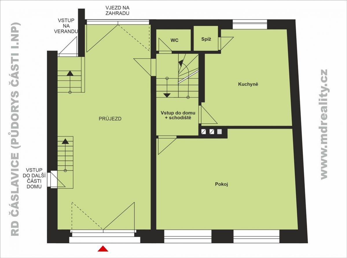
Ve výhradním zastoupení nabízíme k prodeji rodinný dům s rozsáhlou přilehlou zahradou v Čáslavicích, okres Třebíč. Západní, historická část domu, velikostní kategorie 3+1, pochází ze čtyřicátých let minulého století a aktuálně není obývána. Východní polovina domu byla vybudována v roce 1980, je podsklepena včetně garáže a ve zvýšeném přízemí a podkroví nabízí dispozici 4+1 na 114 metrech čtverečných. Obě obytné části jsou spojeny krytým průjezdem vhodným i pro parkování a ústícím do rozsáhlé užitkové a okrasné zahrady, s hospodářským stavením, dílnou, venkovním sklepem, skleníkem dalšími hospodářskými budovami. Objekt je napojen na obecní kanalizaci i vodovod, má vybudovanou přípojku elektřiny (230/400V, rozvody v mědi) a plynu, který ale není aktivně využíván. V roce 2024 byl instalován moderní kotel na tuhá paliva. Na pozemku se nachází kopaná studna. Parcely o celkové výměře 2.595 m jsou oplocené a dostupné také z nezpevněné komunikace na zadní, severní části zahrady. Dům je obytný, hodí se ale také jako základ pro vlastní realizaci modernizačního projektu. Aktuálně jsou pro případnou rekonstrukci použitelné zdroje z dotačního programu "Oprav dům po babičce". Jižní orientace střechy má předpoklady pro osazení FTVE či solárního systému. Pokud uvažujete o vlastním bydlení v nádherné části Vysočiny s dostatečně velkým pozemkem pro plnění Vašich snů, je nabízený dům přesně pro Vás. Kontaktujte makléře!




Prodej rodinného domu Čáslavice na Eurobydleni.cz


Nahoru