Makléř: Bc. Jaroslav Fišer
Telefon: 608 475 ...
E-mail: fiser@r ...
Zobrazit celý kontaktTelefon: 608 475 705, 608 475 705
E-mail: fiser@reality11.cz
Nemovitost nabízí
REAL ESTATE CZECH REPUBLIC a.s.
Zobrazit kontakt na RK
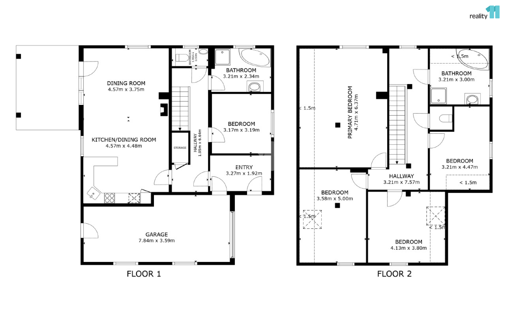
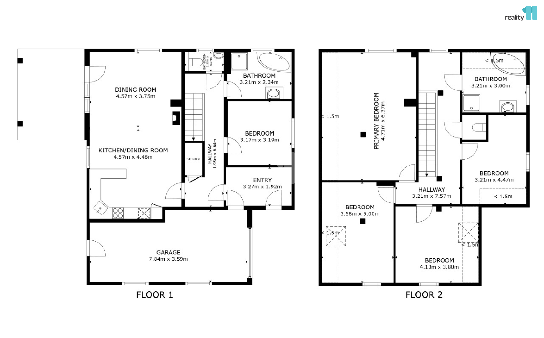
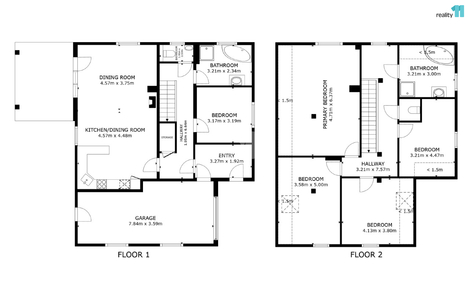
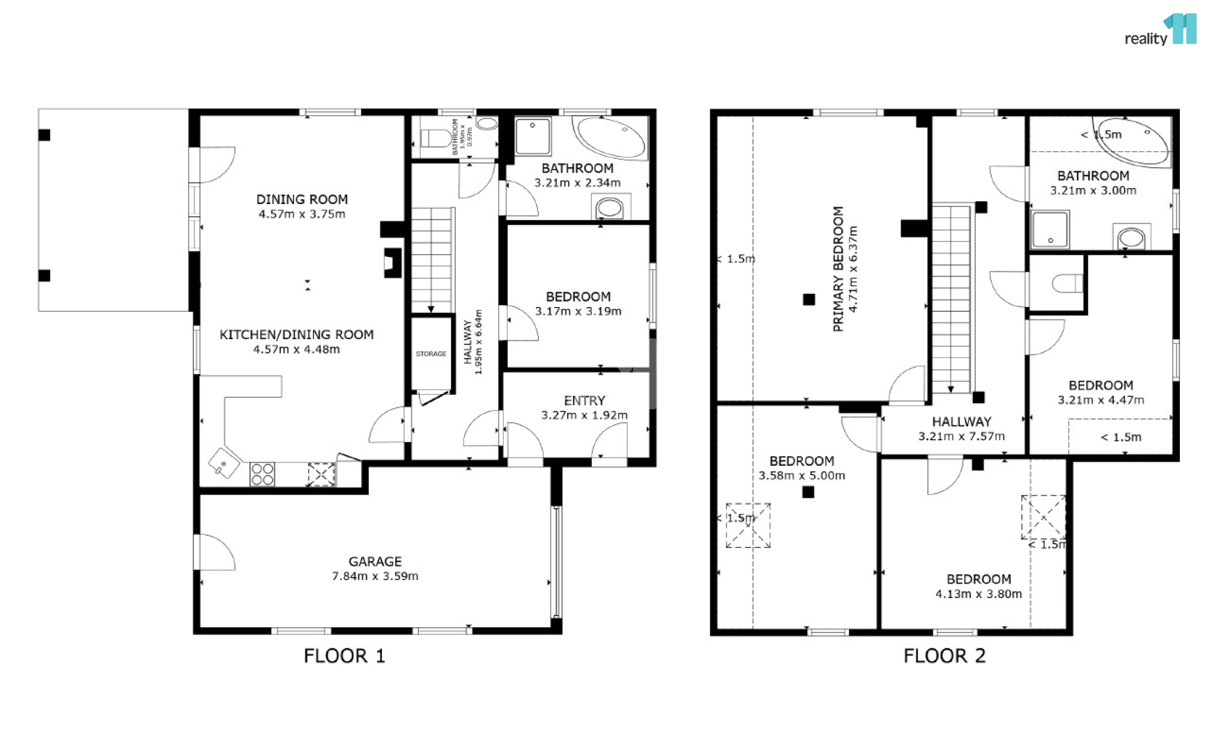
Na okraji města Světlá nad Sázavou, v prostředí, kde se příroda Vysočiny potkává s moderním životním stylem, vzniká nová rezidence Na Kalvárii, která přináší 26 nízkoenergetických rodinných domů v podobě dřevostaveb, navržených s důrazem na funkčnost, kvalitu a úsporu energie. Vybírat můžete ze tří typových domů - řadové domy, dvojdomky nebo samostatné rodinné domy. V rezidenci Na Kalvárii jsou k dispozici buď zcela dokončené domy na klíč, nebo si můžete interiér doladit podle vlastních představ. Každý detail je promyšlený tak, aby nový domov byl nejen krásný, ale i praktický. Tento samostatný dům s dispozicí 5+kk nabízí dostatek prostoru pro celou rodinu. Otevřený obývací prostor s kuchyní plynule přechází na terasu orientovanou na jih, kam po celý den proudí světlo. Každý dům je vybaven tepelným čerpadlem a fotovoltaickou elektrárnou, což zajišťuje nízké provozní náklady. Nechybí ani krbová kamna, která jistě oceníte během chladnějších dnů. Součástí je zahrada ideální pro rodinné chvíle i relax, nechybí ani možnost bezproblémového parkování v garáži, která je součástí domu. Nově vznikající čtvrť nabídne moderní prostředí s přátelskou komunitou a pohodovou atmosférou. Díky skvělé dopravní dostupnosti se z lokality snadno dostanete kamkoliv. Na dálnici D1 jste během několika minut, Praha je vzdálena přibližně hodinu cesty, Brno asi hodinu a čtvrt. A v nejbližších letech se cestování ještě zrychlí - připravovaná rychlodráha ze Světlé zkrátí cestu do Prahy na pouhých 30 minut. Světlá nad Sázavou nabízí vše, co k pohodlnému životu potřebujete - školy, školky, obchody, služby i zdravotní péči. Centrum města máte pár minut chůze od domova a přitom jste na dosah nádherné přírody Vysočiny. Za projektem stojí lokální renomovaná stavební firma, která propojuje poctivou řemeslnou práci s moderními technologiemi a důrazem na energetickou úspornost. Výsledkem jsou domy, které nejen skvěle vypadají, ale také šetří Vaše náklady. Fotky Vám mohou napovědět, ale skutečný dojem poznáte až tehdy, když se ocitnete přímo na místě. Projít si ulicí, otevřít dveře typových domů a nacítit atmosféru nově vznikající čtvrti - to je chvíle, kdy pochopíte, proč je rezidence Na Kalvárii výjimečná. K dispozici máme také 3D virtuální prohlídku, která Vám umožní projít si dům pohodlně z domova a udělat si představu o dispozici i prostoru. Prohlídku na vyžádání velmi rád zašlu. Kontaktujte mě a domluvte si osobní prohlídku - rád Vám projekt představím a nasdílím s Vámi všechny možné varianty domů, které jsou aktuálně dostupné. Ev. číslo: 27872. Energetický štítek: A
Rodinný dům 1+1 Závidkovice, 2 km Světlá nad Sázavou
Ve výhradním zastoupení nabízíme rodinný dům 1+1 s možností rozšíření na 3+1 v přízemí. Přestavbou dílny a dřevníku, které přímo navazují na obytnou…
Prodej rodinného domu se zahradou, Světlá nad Sázavou
Ve výhradním zastoupení nabízím k prodeji rodinný dům se zahradou ve Světlé nad Sázavou. Jedná se o novostavbu rodinného domu z r. 2011, o dvou…